Нийслэлийн Иргэдийн Төлөөлөгчдийн Хурлын 2013 оны 10/39 дүгээр тогтоолоор батлагдсан байршлуудад иргэдэд газар шинээр өмчлүүлэх үйл ажиллагааг цахим хэлбэрээр шат дараатайгаар зохион байгуулж байгаа. 2014 онд зохион байгуулагдсан эхний ээлж, 2015 оны 1 дүгээр сараас эхлэн зохион байгуулагдсан 2 дугаар ээлжийн цахим газар өмчлөлийн ажлаар нийт 24766 нийслэлийн иргэн газар өмчилж авсан байна. Харин газар өмчлөлийн цахим системийн 3 дугаар ээлж 05 дугаар сарын 01-нээс эхэллээ. Бүртгэлийн хугацаа хуанлийн 15 хоног буюу 05 дугаар сарын 15-ны өдөр 12:00 цагт дуусна. З дугаар ээлжээр дараахь 11 байршилд иргэдийг бүртгэж байна.- Сонгинохайрхан, Шижирийн хөндий
- Сонгинохайрхан, Шижир уул
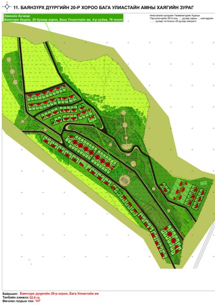
- Баянзүрх, Улиастайн бага ам
- Баянзүрх, Богдын давааны ам
- Хан-Уул, Улаан овоот
- Хан-Уул, Улаан овоот
- Налайх, Нисэх хотхон
- Багануур, Булагтай
- Багахангай, Хангайн хөндийн 2-р хэсэг
- Багануур, Тариан булаг 2-р хэсэг
- Багахангай, Хангайн хөндийн 1-р хэсэг
Иргэд бүртгүүлэхдээ нийслэлийн Засаг даргын Тамгын газрын www.ulaanbaatar.mn болон Өмчийн харилцааны газрын www.umch.ub.gov.mnсайтуудад хандах боломжтой. Харин дэлгэрэнгүй мэдээллийг 1800-1285, 11 319215 дугаарын утсаар авна уу!!!
Өглөө.мн Шинэ өглөө, Шинэ мэдээлэл







